Showroom&Modelhouse
展示場・モデルハウス
- TOP
- 展示場・モデルハウス
- 【防府市】仁井令-3号地モデルハウス
モデルハウス
予約制
【防府市】仁井令-3号地モデルハウス
- 住所
- 山口県防府市仁井令町219番13
- 時間
- 9:00-18:00
スマートフォンでご覧の方はタップで発信できます。

【 建築中 】2026年2月完成予定!!
■コンパクトスタイル
ライフスタイルに合わせて80プランから選べる付帯工事費もコミコミの注文住宅です。
全棟ZEH基準の断熱性能を標準採用。
規格プランなので打ち合わせ回数も少なく、
タイムパフォーマンスとコストパフォーマンスも譲りたくない、お客様へおすすめです。
【大切な家族を守る住まいだから】
面と線により強固に支えるツーバイフォー工法は、耐震性、耐火性、断熱性、気密性に優れた性能があります。
大切な家族を守る住まいだからこそ、安心で快適な生活が送れる工法を採用しています。
等身大サイズのモデルハウスを
ぜひ来て・見て・体感してください。
【来場予約特典】
初めてタナカホームズへご予約ご来場いただくと、QUOカード最大10,000円分をプレゼント!
STEP1 ご来場で3,000円分
STEP2 事前アンケート回答で1,000円分
STEP3 LINEお友だち追加+アンケート回答で1,000円分
STEP4 事前審査申込で5,000円分
※QUOカードは、店舗またはモデルハウスへのご来場が必要となります。
ご来場の際に進呈させていただきます。
※タナカホームズへ初めてお問い合わせ、ご来場いただく方限定です。
※各項目とも1家族様1回までとなります。
※他の来場キャンペーンとは併用はできません。
詳しくは、店舗までお問い合わせください。
フリーダイヤル:0120—834—938
下記フォームからもお問い合わせ頂けます。
Point
この展示場・モデルハウスの見どころ
-
完成外観イメージ
完成外観イメージ
-
配置図
配置図
-
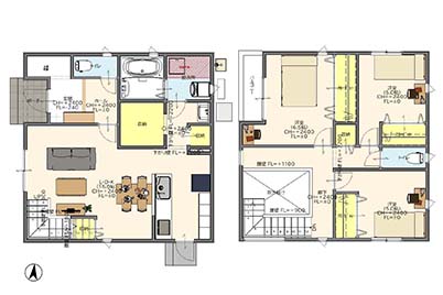
間取り図
間取り図
-
キッチン(パナソニック)
キッチン(パナソニック)
-
カップボード(パナソニック)
カップボード(パナソニック)
-
洗面化粧台(パナソニック)
洗面化粧台(パナソニック)
-
浴室(パナソニック)
浴室(パナソニック)
-
トイレ(リクシル)
トイレ(リクシル)
Map
アクセスマップ
Reserve
来場予約フォーム
下記フォームに必要項目をご入力ください。
※必須項目は必ずご記入ください。
-
STEP1

入力
-
STEP2

確認
-
STEP3

完了
・メールフォームによるお問い合わせは24時間受け付けております。
・以下のフォームにお問い合わせの内容をご記入の上、送信ボタンを押してください。
・また、弊社定休日や担当者がお休みをいただいている場合は翌営業日以降のご連絡となる場合がございます。
