Estate
建売住宅・分譲地情報
- TOP
- 建売住宅・分譲地情報
- 平屋 4LDK 阿品台建売住宅【廿日市市】
広島
建売
平屋 4LDK 阿品台建売住宅【廿日市市】
- 住所
- 広島県廿日市市阿品台4丁目9-7
- 区画
- 1区画/全1区画
- 建物面積
- 98.54㎡(29.74坪)
- 土地面積
- 227.52㎡(68.68坪)
- 間取り
- 4LDK
- 駐車可能スペース
- 2台
この分譲地のポイント
								1000万円 PRICE DOWN!
(旧価格:5480万円 公表日:R6/6.14→価格改定日:R7/9.5)
タナカホームズ広島西店の最新モデルハウスを販売中!
全体的にナチュラルテイストでまとめ、アクセントにグレーを採用することで高級感を醸し出しいてます。
天井高を高めに、室内ドアをハイドアを採用することで、通常の平屋より開放的な空間となっています。
玄関にはエコカラット採用。消臭・除湿効果でいつでも快適!
リビングのフローリングは特殊加工を施し、ペットにもやさしく、
さらにへこみ、すり傷に強く、汚れも落ちやすいお手入れもラクラク!
見た目も高級感のある一本物で、無垢のような風合いと深みが楽しめます。
生活動線に合わせて収納を設置し、すっきりと整理整頓ができます!
キッチンのダウンライトはスピーカー付き!
音楽を聴きながら楽しく家事ができます。
見学予約受付中!
お気軽にお問い合わせください♪
【YouTube】ショート動画でご案内中!
https://youtube.com/shorts/14rvlACT7NM?si=seJAAHgYvi0M3oyc
							
この物件の支払い例
| 販売価格 | 4,480万円 (税込) | 
|---|---|
| 月々支払 | 107,036円 | 
※上記支払例の借入条件:年利0.7% 変動金利/返済期間40年※2025.1.31時点
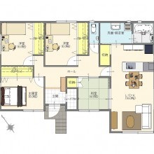
Layout
間取り図
 
			Outline
物件概要
| 所在地 | 広島県廿日市市阿品台4丁目9-7 | ||
|---|---|---|---|
| 都市計画 | 市街化区域 | 交通 | JR山陽本線 阿品駅 徒歩20分 | 
| 校区 | 廿日市市立阿品台東小学校/754m 廿日市市立阿品台中学校/991m | ||
| 販売区画数 | 1区画 | 総区画数 | 1区画 | 
| 地目 | 宅地 | 用途地域 | 第一種低層住居専用地域 | 
| 建ぺい率 | 50% | 容積率 | 100% | 
| 現況 | 完成(2023年4月) | 土地権利 | 所有権 | 
| 道路 | 南西側、幅員6.3m、15m接面 | 建築条件付 | 有 | 
| 設備 | 電気、給排水、換気、住宅用火災警報器 | ||
| 取引形態 | 売主 | ||
| 建築条件説明 | - | ||
| その他 | ・第R04認広建セ02250号 ・金融機関:西京銀行参照(※別途、融資事務手数料および電子契約手数料が必要となります。) | ||
| 物件更新日 | 2025年10月17日 | 次回更新日 | 物件更新日より30日以内に更新 | 
Contact
物件お問い合わせフォーム
							下記フォームに必要項目をご入力ください。
※必須項目は必ずご記入ください。
						
- 
								STEP1  入力 
- 
								STEP2  確認 
- 
								STEP3  完了 
								・メールフォームによるお問い合わせは24時間受け付けております。
								・以下のフォームにお問い合わせの内容をご記入の上、送信ボタンを押してください。
								・また、弊社定休日や担当者がお休みをいただいている場合は翌営業日以降のご連絡となる場合がございます。
							
 
					 
 
				  
			 
										 
										 
										 
										 
										 
										 
										 
										 
										








 
							 
							 
							 
							 
							 
							 
							 
							